Terra Verde
Studio voor
Architectonische
Oplossingen
vanoosten.marchel@gmail.com
Home
Work
Working on now
Schools
Offices
Cultural Projects
Student Guidance
Local Authority Projects
Other projects
Unrealized projects
References
About
Contact
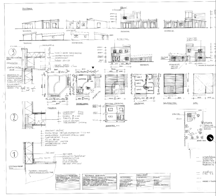
Uitbreiding Woonhuis Te Gorssel
This is the project named Uitbreiding Woonhuis Te Gorssel
#Other projects