Terra Verde

Studio voor
Architectonische
Oplossingen
vanoosten.marchel@gmail.com



Supersnack

journalist Peter ten Cate

Michel and Martine Hissink own this snack bar, called Supersnack, in the center of Zutphen. The snack bar has been completely renovated and expanded such that it fits well in the historical city center. The result is a modern and attractive snack bar with a fresh look.

De Zeevaarder

The Zeevaarder sports hall in Emmeloord is a multifunctional sports hall.

Haarlem Oost

Minaret

The minaret in Haarlem Oost is a mosque with a minaret that is 35 meters high. The mosque is located in Haarlem and is a place of worship for the Muslim community.

Written reference for Marchel by

Harry de Vries

Harry de Vries was the former head of the department of architecture and green facilities at the municipality of Noordoostpolder. In this reference, he describes Marchel as a professional and reliable architect who is a great team player having a good eye for detail.

Written reference for Marchel by

Leo Breukel

Leo Breukel

Article from the Stentor

journalist Dik van Herwaarden

This article from the Stentor describes the new school and childcare center in Emmeloord. The article even mentions the, consciously chosen, colorful and playful design of the schools. Which should make the school and childcare center a fun and inspiring place for the children.

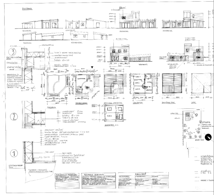
Bestek tekening

Expansion of house in Gorssel in a wooded area. Largely expanded with recycled materials.

View project

Minderhoudschool

journalist Jan Hermsen

The Minderhoudschool in Tollebeek is a primary school that has been largely extended. The school has been expanded and modernized to meet the current requirements for primary education.

View project